Mieszkanie na sprzedaż Jelenia Góra

3 pokoje
83.80 m²
3 937,95 zł/m2
1 piętro
NXTH-MS-1271
Oblicz ratę kredytu

330 000 zł

Mieszkanie na sprzedaż
Oferta na wyłączność

Szczegóły oferty

Symbol oferty NXTH-MS-1271
Powierzchnia 83,80 m²
Powierzchnia użytkowa [m2] 79,60 m²
Liczba pokoi 3
Liczba sypialni 3
Rodzaj budynku budynek wielorodzinny
Technologia budowlana cegła
Standard
Opłaty w czynszu -
Opłaty wg liczników gaz, prąd, woda
Piętro 1
Liczba pięter w budynku 2
Garaż miejsce parkingowe przy budynku
Piwnica [m2] 4,20 m²
Stan lokalu bardzo dobry
Okna PCV
Instalacje wymienione
Rok budowy 1930
Widok na podwórko
Gaz jest
Woda tak
Dojazd asfalt
Otoczenie zabudowa wielorodzinna
Ogrzewanie gazowe
Odległość do komunikacji publicznej [m] 500 m
Usytuowanie środkowe
Klucze tak
Pomieszczenia
Podłogi pokoi panele
Typ kuchni jasna z oknem
Rodzaj kuchni oddzielna
Podłoga kuchni kafle
Typ łazienki razem z wc
Liczba łazienek 1
Glazura łazienki nowego typu
Podłoga łazienki kafle
Wyposażenie łazienki prysznic
Liczba WC 1
Glazura WC glazura
Podłoga WC kafle
Liczba przedpokoi 1
Podłoga przedpokoi panele
Joanna Klimczyńska

Joanna Klimczyńska

właściciel
Nr licencji: 23458

Napisz wiadomość 31 Ofert

Opis nieruchomości

Biuro nieruchomości nextHome przedstawia Państwu na sprzedaż lokal mieszkalny położony w malowniczej Jeleniej Górze. To idealna propozycja dla osób poszukujących komfortowego lokum w dogodnej lokalizacji.

Lokalizacja
Nieruchomość zlokalizowana jest niedaleko centrum Jeleniej Góry. Dzięki temu, przyszli właściciele będą mogli cieszyć się zarówno spokojem, jak i bliskością do miejskich atrakcji.

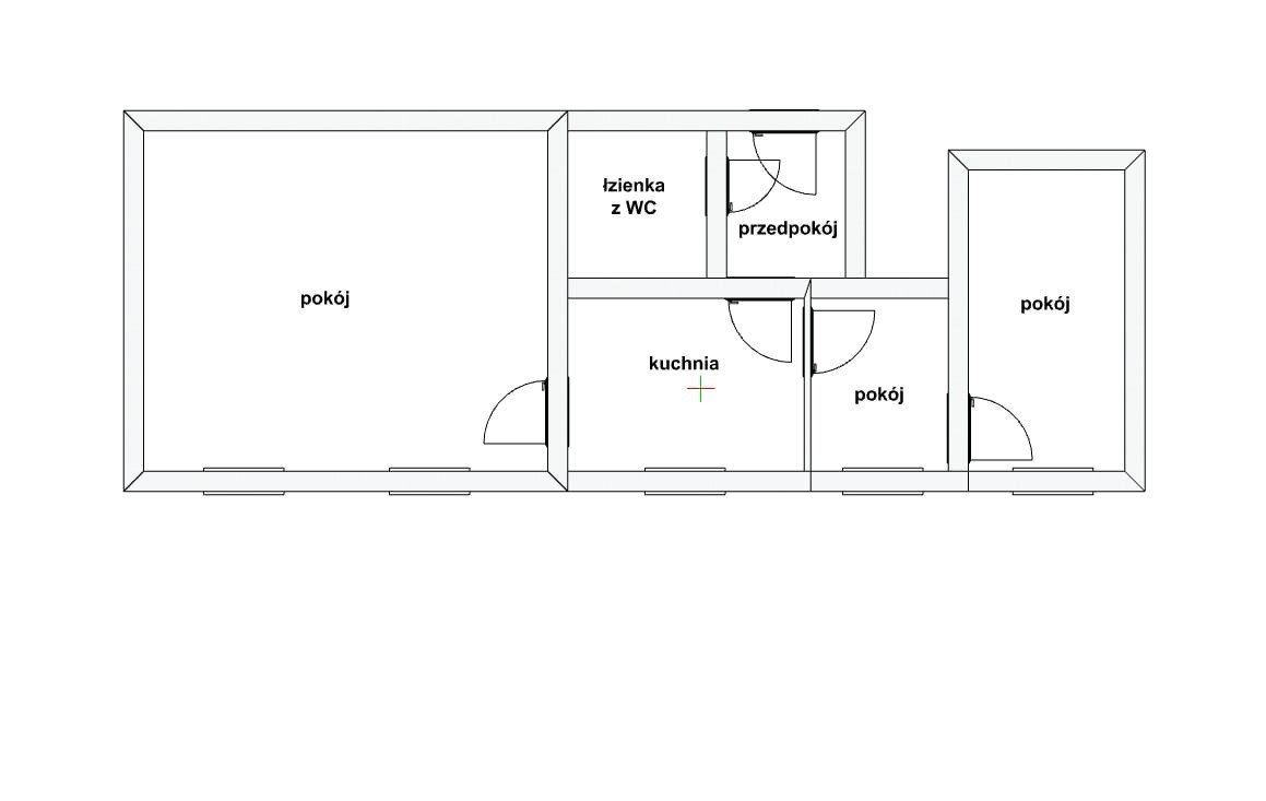
Rozkład pomieszczeń
Prezentowany lokal to wyjątkowe, trzypokojowe mieszkanie znajdujące się na I piętrze, co czyni je idealnym wyborem dla rodzin, par, a także osób ceniących sobie wygodę.
Powierzchnia użytkowa to 79,60m2 i składają się na nią :
- przestronny salon,
- 2 sypialnie,
- oddzielna kuchnia,
- łazienka,
- przedpokój.
Wszystkie pomieszczenia są jasne, wysokie, dające przestrzeń.

Mieszkanie bezczynszowe !

Mieszkanie jest w bardzo dobrym stanie technicznym, gotowe do zamieszkania.
Ogrzewanie dwufunkcyjne piec gazowy.

Sprzedaż bez wyposażenia (zostaje jedynie wyposażenie kuchni i łazienki). 

Dodatkowe informacje:
W pobliżu mieszkania znajduje się przystanek autobusowy, co zapewnia szybki i łatwy dostęp do różnych części miasta.
Mieszkanie jest bezczynszowe, co oznacza brak dodatkowych opłat związanych z czynszem. To doskonała okazja do zaoszczędzenia na miesięcznych wydatkach.
Do mieszkania przynależy piwnica.
Miejsca parkingowe przy budynku.

Nie przegap okazji na zakup tego wyjątkowego mieszkania!

Zapraszam na prezentację ! Klucze w biurze !

Lokalizacja nieruchomości

Kalkulatory

Kalkulator kredytowy

Wysokość raty

PLN
%

Podobne oferty

Oferta na wyłączność

Mieszkanie na sprzedaż

Jelenia Góra, Centrum

3 pokoje 48 m2 8 104,17 zł/m2
Oferta na wyłączność
Oferta na wyłączność

Mieszkanie na sprzedaż

Jelenia Góra, Centrum

2 pokoje 44 m2 8 346,67 zł/m2
Oferta na wyłączność
Oferta na wyłączność

Mieszkanie na sprzedaż

Jelenia Góra, Centrum

2 pokoje 51 m2 5 752,56 zł/m2
Oferta na wyłączność
Oferta na wyłączność

Mieszkanie na sprzedaż

Jelenia Góra, Centrum

2 pokoje 39 m2 7 393,00 zł/m2
Oferta na wyłączność

właściciel

Proszę wprowadzić poprawne imię i nazwisko
Proszę wprowadzić poprawny numer telefonu
Proszę wprowadzić poprawny adres e-mail
Proszę zaznaczyć wymagane zgody
Rozwiąż równanie:
29 2
Niepoprawny wynik